Valkenswaardseweg 2 • Leende

Jos de Veer
Verkocht
Zeer acceptabele startprijs € 395.000,- k.k. (bieden vanaf) - slechts €3.623,- per m2.
Onder de 35 en je eerste woning, dan heb je recht op startersvrijstelling !!!
Uitgebouwde woning met o.a. een ruime living, leefkeuken, badkamer op de begane grond en verdieping met totaal 3 slaapkamers en een grote toiletruimte (mogelijkheid om een badkamer te realiseren), verrassend diepe achtertuin met optimale privacy en een grote vrijstaande hobby garage (ideaal voor het stallen van een camper), gelegen op zeer korte afstand van het centrum van Heeze op een groot perceel van 480 m2.
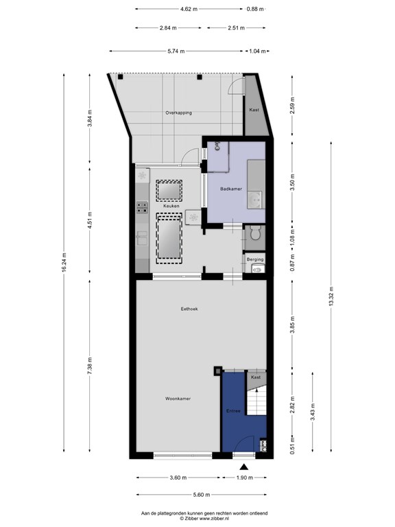
Begane grond:
Entree:
Hal met lamelparket vloer, meterkast met vernieuwde groepen...
... verdeling en trap opgang naar eerste verdieping.
Woonkamer:
Woonkamer met lamel, parketvloer, trapkast en elektrisch bedienbaar rolluik.
Tussenhal:
Tussen hal met tegelvloer, bergruimte met opstelling HR CV installatie (Vaillant bouwjaar ca. 2011), geheel betegeld toilet en een geheel betegelde ruime badkamer met douche en wastafel meubel.
Keuken:
Royale zit keuken met tegelvloer, tweetal dak koepels en keuken opstelling met diverse apparatuur zoals gaskookplaat, afzuigkap en 1 1/2 spoelbak. Vanuit de keuken een loop deur naar tuin.
Eerste verdieping:
Middels overloop met vloerbedekking.
Slaapkamers:
Eerste ruime slaapkamer met lamel parketvloer en grote dakkapel.
Tweede ruime slaapkamer met lamel, parketvloer en dakkapel.
Derde slaapkamer met laminaatvloer en dakkapel.
Vierde kamer met lamel parketvloer, toilet, vaste wastafel en een Velux dakraam.
Tweede verdieping:
Berg zolder vanuit overloop bereikbaar.
Tuin:
Zeer diepe achtertuin met optimale privacy, bestrating, overdekt terras en zeer grote vrijstaande hobby garage met elektrisch bedienbare sectionaal roldeur.
Belangrijk:
• Bouwjaar ca. 1930.
• Perceeloppervlakte 480 m2.
• Woonoppervlakte ca. 109 m2, inhoud ca. 387 m3.
• Gehele woning voorzien van kunststof kozijnen.
• Zeer diepe achtertuin aanwezig en een grote vrijstaande hobbygarage (ideaal voor het stallen van een camper).
Overdracht
Referentienummer
07935
Vraagprijs
€ 395.000,- k.k.
Status
Verkocht
Aanvaarding
In overleg
Aangeboden sinds
9 januari 2026
Laatste wijziging
1 april 2026
Bouw
Type object
Woonhuis | Eengezinswoning | Tussenwoning
Soort bouw
Bestaande bouw
Bouwjaar
1930
Oppervlakte, inhoud, energie
Perceeloppervlakte
480 m2
Woonoppervlakte
109 m2
Inhoud
387 m3
Oppervlakte gebouwgebonden buiten ruimten
18 m2
Oppervlakte externe bergruimte
40 m2
Indeling
Aantal bouwlagen
3
Aantal kamers
4 (waarvan 3 slaapkamers)
Aantal badkamers
1
Aantal toiletten
2
CV-ketel
Uitrusting
Aantal parkeerplaatsen
3
Badkamervoorzieningen
Badkamer 1: Douche, Wastafel, Wastafelmeubel