Valkenswaardseweg 2 • Leende

Jos de Veer
Nieuw in verhuur
A++++
VANWEGE HET GROTE AANTAL REACTIES IS HET NIET MEER MOGELIJK OM OP DEZE WONING TE REAGEREN.
Voor de verhuur van deze mooie energiezuinige tussenwoning kunt u contact opnemen met ons kantoor. Zodra we al uw gegevens hebben ontvangen, kunnen we een bezichtiging afspreken. De huurperiode is minimaal 24 maanden. Indien u meer vragen hierover heeft kunt u contact met ons opnemen.
Huurprijs € 1.365,00 per maand
Beschikbaar per 1 juni 2026
OMSCHRIJVING:
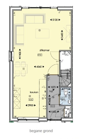
Deze fraaie huurwoning, aan de Julianstraat 25b in Leende is een royale, zeer comfortabele en recent gebouwde eengezinswoning en is compleet afgewerkt met een gezellige woonkamer, moderne open keuken, compleet met apparatuur, kastenwand,...
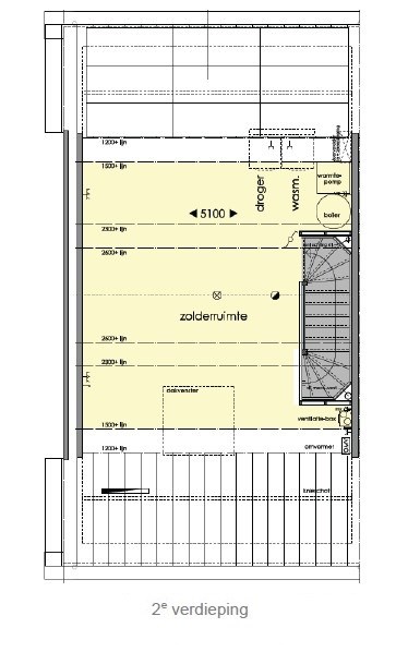
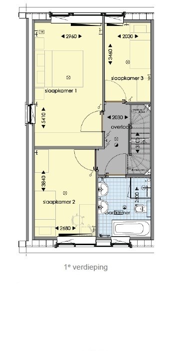
... en toilet voorzien van accessoires. Op de 1e verdieping zijn drie slaapkamers, een badkamer voorzien van ligbad, wandcloset, inloopdouche en dubbele wastafel. Middels vaste trap heeft u toegang naar de 2e verdieping wat nu een grote open ruimte is maar die u heel makkelijk kunt u realiseren tot een werkruimte en/of 4e slaapkamer. Tevens heeft deze ruimte veel lichtinval middels een groot dakvenster en aansluitingen ten behoeve van wasapparatuur.
Maar ook de tuin is grotendeels afgewerkt. In de achtertuin is een bestraat terras van ca. 5 x 3 meter aanwezig en een looppad naar de buitenberging en poort. Op de erfgrens is een gaashekwerk met daartegen beplanting aangebracht. In de voortuin ligt een bestraat pad naar de voordeur en is de erfgrens voorzien van beplanting. Kortom de woning is volledig instap klaar en geheel aangepast aan de eisen van deze tijd.
Het woonoppervlak van de woning bedraagt ca 109 m2, op een perceel grond van 126 m². De woning heeft de beschikking over 2 eigen privé-parkeerplaatsen op het achterliggend terrein. Deze parkeerplaatsen zijn door nummering toegewezen aan de woningen, dus ook echt voor eigen gebruik.
De woning is zeer energiezuinig (Energielabel A++++) door uitstekende isolatie en de plaatsing van 15 stuks zonnepanelen waardoor het energieverbruik laag is. Zoals alle nieuwbouwwoningen, zijn ook deze woningen niet meer op gas aangesloten. Daarnaast zijn de woningen gebouwd onder de regeling groenprojecten voor duurzame nieuwbouwwoningen.
Overdracht
Referentienummer
07959
Vraagprijs
€ 1.365,- per maand
Status
Beschikbaar
Aanvaarding
In overleg
Aangeboden sinds
29 april 2026
Laatste wijziging
7 mei 2026
Bouw
Type object
Woonhuis | Eengezinswoning | Tussenwoning
Borg
€ 2.730,-
Soort bouw
Bestaande bouw
Bouwjaar
2021
Daktype
Mansardedak
Dakmateriaal
Pannen
Isolatievormen
Volledig geisoleerd, Dubbelglas
Oppervlakte, inhoud, energie
Perceeloppervlakte
126 m2
Woonoppervlakte
109 m2
Inhoud
327 m3
Energielabel
A++++
Indeling
Aantal bouwlagen
3
Aantal kamers
5 (waarvan 4 slaapkamers)
Aantal badkamers
1
Aantal toiletten
1
CV-ketel
Uitrusting
Aantal parkeerplaatsen
2
Tuin
Ja
Ventilatie
Ja
Badkamervoorzieningen
Badkamer 1: Ligbad, Toilet, Douche, Dubbele wastafel, Inloopdouche