Valkenswaardseweg 2 • Leende

Geert van Breukelen
C
Zeer doordachte bodemprijs: € 665.000,- k.k.
Kijk en vergelijk!
Highlights:
* Vrijstaande grote garage.
* Perfect onderhouden en optimaal geïsoleerd!
* Groot perceel van maar liefst 840 m2!
* 18 zonnepanelen (2021).
* Badkamer en sanitair in 2020 volledig vernieuwd.
* Ideale verbinding met de uitvalswegen en op slechts 25 autominuten van ASML en de HTC.
Vrijstaand optimaal geïsoleerd en perfect onderhouden woonhuis met o.a. een grote vrijstaande garage, sfeervolle living met erker, zitkeuken met luxe keukenopstelling, verdieping met 3 slaapkamers en complete moderne badkamer.
Begane grond:
Indeling:
Entree:
Hal met moderne tegelvloer, meterkast met uitgebreide en vernieuwde groepenverdeling, trapopgang naar 1e verdieping en loopdeur naar...
... keuken en living.
Living:
Sfeervolle living met smaakvolle tegelvloer, erker aan de voorzijde voorzien van glas-in- lood ramen, openslaande deuren naar de tuin en zandstenen schouw met sierhaard.
Keuken:
Separate zitkeuken met fraaie en moderne tegelvloer en schuifpui welke toegang biedt naar de tuin. Moderne keukenopstelling compleet met inbouwapparatuur zoals: vaatwasser, koelkast en Boretti fornuis met 5 pits gaskookplaat, grote oven en afzuigkap.
Tussenportaal:
Tussenportaal met moderne tegelvloer en loopdeur naar de tuin.
Wasruimte:
Praktische wasruimte met moderne tegelvloer, aansluiting wasapparatuur, opstelling HR cv ketel (Nefit bouwjaar 2014) en omvormer ten behoeve van de zonnepanelen.
Toiletruimte:
Stijlvol en modern betegeld toilet met zwevend closet, fonteintje en inbouwspots.
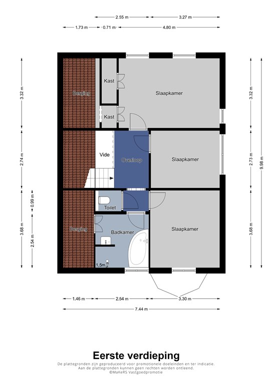
1e Verdieping:
Middels overloop:
Overloop met laminaatvloer, inbouwspots en vide. Separate moderne toiletruimte (ca. 2020) met zwevend closet.
Slaapkamers:
1e Royale slaapkamer met laminaatvloer, maatwerk inbouwkasten, speels hoog plafond tot de nok en luik naar bergzolder.
2e Ruime slaapkamer met fraaie laminaatvloer en inbouwspots.
3 Grote slaapkamer met stijlvolle laminaat vloer, hoog plafond tot aan de nok en inbouwspots.
Badkamer:
Moderne geheel betegelde badkamer met vloerverwarming (ca. 2020), ligbad, wastafelmeubel en inloopdouche, inbouwkast en inbouwspots.
Garage:
Grote vrijstaande garage met elektrisch bedienbare kanteldeur, smeerput en bergzolder.
Tevens een loopdeur naar de tuin.
Tuin:
Fraai aangelegde en diepe achtertuin met optimale privacy, sierbestrating, groot gazon, tuinverlichting, stroompunten. Voortuin met grote oprit met plaats voor meerdere auto’s.
Belangrijk:
* Bouwjaar 1972
* Woonoppervlakte ca 133 m2, inhoud ca 517 m3.
* Goed isolatie met o.a. geheel voorzien spouwmuurisolatie (ca. 2019), vloer,- dak en HR ++ beglazing, combinatie hardhout en kunststof kozijnen & 18 zonnepanelen
(ca. 2021).
* Alle binnenmuren en binnendeur kozijnen in 2025 geschilderd.
* Buitenschilderwerk 2025.
* Ideale locatie op korte afstand van het centrum en goede verbinding met de uitvalswegen.
Overdracht
Referentienummer
07914
Vraagprijs
€ 665.000,- k.k.
Status
Beschikbaar
Aanvaarding
In overleg
Aangeboden sinds
5 november 2025
Laatste wijziging
2 februari 2026
Bouw
Type object
Woonhuis | Villa | Vrijstaande woning
Soort bouw
Bestaande bouw
Bouwjaar
1972
Daktype
Zadeldak
Dakmateriaal
Pannen
Isolatievormen
Muur isolatie, Volledig geisoleerd, Spouw muur, Dubbelglas
Oppervlakte, inhoud, energie
Perceeloppervlakte
840 m2
Woonoppervlakte
133 m2
Inhoud
517 m3
Oppervlakte externe bergruimte
23 m2
Energielabel
C
Indeling
Aantal bouwlagen
2
Aantal kamers
4 (waarvan 3 slaapkamers)
Aantal badkamers
1
Aantal toiletten
2
Aantal garages
1
CV-ketel
Uitrusting
Aantal parkeerplaatsen
5
Aantal garages
1
Tuin
Ja
Badkamervoorzieningen
Badkamer 1: Ligbad, Wastafel, Inloopdouche