Valkenswaardseweg 2 • Leende

Jos de Veer
Verkocht
C
Koopprijs € 1.295.000,- k.k.
Te koop in Valkenswaard, Dijkstraat 5
Traditioneel gebouwde vrijstaande villa met o.a. een royale, sfeervolle living met fraai zicht over de tuin, gezellige grote luxe leefkeuken compleet met luxe inbouwapparatuur, bijkeuken met badkamer. Verdieping met totaal 4 slaapkamers (waarvan ouderslaapkamer met een luxe grote badkamer. Prachtig aangelegde tuin met optimale privacy, verwarmd zwembad en een grote vrijstaande dubbele garage. Tevens een grote oprit aan de achterzijde en voorzijde van het perceel. Gelegen op een ideale rustige locatie in het centrum van Valkenswaard. Totale perceel oppervlakte 988 m2
Indeling:
Begane grond:
Entree:
Royale ontvangsthal met smaakvolle natuursteen, vloer, voorzien...
... van vloerverwarming, meterkast, luxe betegeld toilet met fonteintje, trap opgang naar eerste verdieping en glas deur naar de living.
Living:
Ruime living deels voorzien van eikenhouten vloer en natuursteen beiden voorzien van vloerverwarming. Gashaard voorzien van een sierschouw. Vanuit de living open verbinding naar de eetkamer met fraaie natuursteen vloer voorzien van vloer verwarming en een schuifpui naar de tuin.
Keuken:
Grote sfeervolle keuken met natuursteen vloer voorzien van vloerverwarming. Luxe keuken opstelling met RVS aanrechtblad, compleet met inbouw apparatuur zoals: vaatwasser, stoomoven, heteluchtoven, inductie kookplaat, design afzuigkap, koffiezetapparaat, koelkast en kokend waterkraan. Vanuit de keuken naar praktische en verdiepte kelder provisie voorraad ruimte tevens loop deur naar tussenhal.
Tussenhal:
Tussenhal met natuursteen vloer voorzien van vloerverwarming, schuif kastenwand, loop deur naar tuin en een moderne badkamer voorzien van douche, toilet en fonteintje.
Eerste verdieping:
Middels overloop met fraaie visgraat PVC vloer en vaste trap naar de tweede verdieping.
Slaapkamers:
Eerste ruime slaapkamer met visgraat, pvc vloer en maatwerk inbouw kastenwand .
Tweede riante ouder slaapkamer met smaakvolle, visgraat PVC vloer, inbouw kastenwand, toegang tot grote luxe badkamer en eigen inloop garderobe, voorzien van maatwerk kastruimte en een separaat luxe betegeld toilet.
Badkamer:
Grote luxe badkamer voorzien van vloerverwarming grote inloop douche en dubbel wastafel meubel.
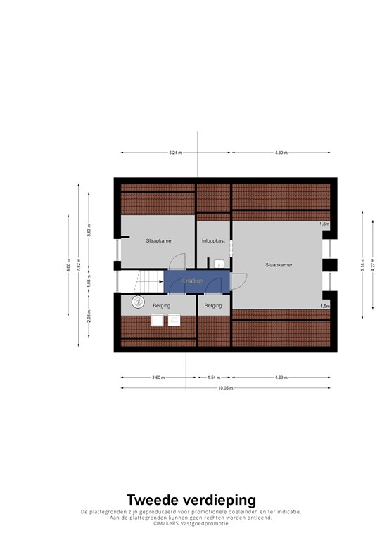
Tweede verdieping:
Middels overloop met pvc vloer en bergruimte.
Wasruimte:
Separate was ruimte met pvc vloer aansluiting ten behoeve van wasapparatuur en opstelling. HR CV ketel bouwjaar 2024.
Slaapkamers:
Derde ruime slaapkamer met pvc vloer.
Vierde grote slaapkamer met pvc vloer en inloop garderobe voorzien van vaste wastafel.
Tuin:
Prachtig aangelegde tuin met optimale privacy, overdekt terras, tuinverlichting, verwarmd zwembad met elektrisch bedienbaar solardeck, vrije achterom en toegang tot grote vrijstaande dubbele garage en separate technische ruimte ten behoeve van het zwembad met opstelling pomp en filterinstallatie en tevens voorzien van een eigen cv ketel HR Intergas bouwjaar 2024. De tuin is volledig omheind en voorzien van een elektrisch bedienbaar. Hekwerk achter de garage is een grote oprit gelegen voor plaats voor meerdere auto’s op eigen terrein. Ook de voortuin is fraai aangelegd en beschikt over een oprit.
BELANGRIJK:
Bouwjaar ca. 1978, perceel oppervlakte 988 m2
Woonoppervlakte ca. 242 m2, inhoud ca. 888 m3.
Grote vrijstaande dubbele garage van ca. 62 m2 en zeer grote afgesloten oprit voor meerdere auto's.
Perfect onderhouden en geïsoleerd woonhuis met o.a. spouwmuur,- dak- en vloerisolatie.
Gelegen op een ideale en rustige locatie midden in het centrum van Valkenswaard op steenworpafstand van de gezellige "Markt" en alle winkels.
Overdracht
Referentienummer
07924
Vraagprijs
€ 1.295.000,- k.k.
Status
Verkocht
Aanvaarding
In overleg
Aangeboden sinds
28 november 2025
Laatste wijziging
4 maart 2026
Bouw
Type object
Woonhuis | Villa | Vrijstaande woning
Soort bouw
Bestaande bouw
Bouwjaar
1978
Daktype
Samengesteld dak
Dakmateriaal
Pannen, Keramiek
Isolatievormen
Dak isolatie, Vloer isolatie
Oppervlakte, inhoud, energie
Perceeloppervlakte
988 m2
Woonoppervlakte
242 m2
Inhoud
888 m3
Oppervlakte gebouwgebonden buiten ruimten
19 m2
Oppervlakte externe bergruimte
62 m2
Energielabel
C
Indeling
Aantal bouwlagen
3
Aantal kamers
6 (waarvan 5 slaapkamers)
Aantal badkamers
2
Aantal toiletten
2
Aantal garages
1
CV-ketel
CV-ketel
HR-107 ketel
Uitrusting
Aantal parkeerplaatsen
6
Aantal garages
1
Tuin
Ja
Ventilatie
Ja
Zwembad
Ja