Valkenswaardseweg 2 • Leende

Matt Andreoli
Verkocht
A++++
Highlights:
• Toplocatie aan de “paarden boulevard” in Valkenswaard, op loopafstand van Tops International Arena!
• Alle faciliteiten aanwezig voor het hobbymatig houden van paarden en/of andere dieren.
• Volledig omheind met een prachtig aangelegde, met hout afgezette weide en paddock.
• Grote (ca. 338 m²) vrijstaande loods/werkplaats aanwezig inclusief kantoorruimte.
• Energie neutrale woning met aardwarmte en maar liefst 60 zonnepanelen aanwezig.
• 4 grote slaapkamers en 2 badkamers.
• Grote leefkeuken met zicht over de weilanden.
• Op rustige groene locatie met vrij uitzicht over de landerijen te midden van grote natuurgebieden.
• Huidige hoofdbestemming is “Bedrijven”, de gemeente staat open voor het omzetten naar de bestemming “Wonen”.
• Energielabel A++++.
Te koop in Valkenswaard,...
... Grensweg 4;
Werkelijk schitterend en recent gebouwd vrijstaand optimaal geïsoleerd landhuis op een bijzondere, mooie bedrijfslocatie met o.a. een grote living, fantastische luxe grote leefkeuken, slaap- en badkamer op de begane grond en een verdieping met 3 grote slaapkamers, een complete 2e badkamer en een inloopgarderobe. Prachtig onder architectuur aangelegde tuin met optimale privacy, alle faciliteiten aanwezig voor het hobbymatig houden van paarden met o.a. paddock, weiland, vier paardenboxen en een schuilstal. Aansluitend een vrijstaande loods/werkplaats inclusief een luxe kantoorruimte (ideaal voor bedrijf aan huis).
Indeling:
Begane grond:
Schitterende ontvangsthal met vide, eikenhouten vloer, granieten trap met vloerverwarming.
Living:
Prachtige living eikenhouten vloer, dubbele openslaande deuren naar de tuin en overdekt terras en sfeervolle gashaard zowel in de living als onder het overdekt terras. Vanuit de living schitterend weids uitzicht over de weilanden. Via stalen schuifdeuren toegang tot de keuken.
Keuken:
Fantastische grote leefkeuken met stijlvolle tegelvloer. Exclusieve en luxe keukenopstelling met composiet aanrechtblad. Compleet met inbouwapparatuur zoals: koelkast, Quooker, vaatwasser, stoomoven, combi-oven, koffiezetapparaat en inductie kookplaat met draft afzuiging. Vanuit de keuken dubbele openslaande deuren naar de tuin.
Slaapkamer:
Grote slaapkamer smaakvolle eikenhouten vloer en directe toegang tot eigen badkamer.
Badkamer:
1e Betegelde badkamer voorzien van een grote inloopdouche, zwevend toilet, dubbel wastafelmeubel en inbouwspots.
Tussenhal:
Tussenhal met moderne tegelvloer, betegeld toilet met fonteintje en loopdeur naar de tuin.
Bijkeuken:
Praktische bijkeuken met spoelbak, maatwerk kasten en aansluiting witgoed.
Berging:
Grote inpandige berging met fraaie tegelvloer, een “Solartube” voor daglicht, meterkast, openslaande deuren naar carport en voortuin, maatwerk bergkasten, opstelling aard warmtepomp, WTW en boiler.
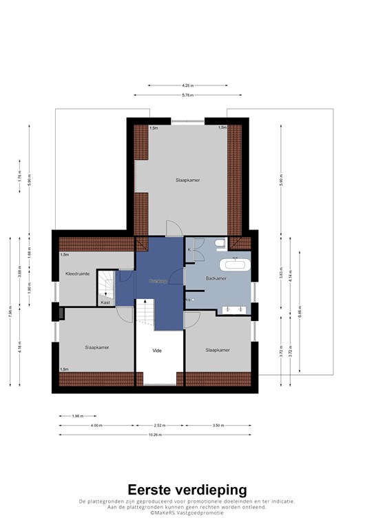
1e Verdieping:
Via een royale overloop met PVC-vloer is er toegang tot alle slaapvertrekken en de badkamer. De gehele verdieping is voorzien van een hoogwaardige, smaakvolle pvc-vloer.
Slaapkamers:
1e Ruime slaapkamer.
2e Royale slaapkamer.
3e Riante ouderslaapkamer met schitterende eiken balkenconstructie met open kapconstructie tot aan de nok. Vanuit deze slaapkamer wijds uitzicht over de tuin en de weilanden.
Separate inloopgardrobe maatwerk kasten en schitterende pvc-vloer.
Badkamer:
2e Geheel betegelde badkamer met antieke kast, zwevend toilet, vrijstaand ligbad, dubbel wastafelmeubel, grote inloopdouche, inbouw en wandverlichting.
De ramen van de verdieping zijn allen voorzien van ingebouwde rolluiken.
2e Verdieping:
Via vaste trap bereikbare grote bergzolder.
Terras;
Vanuit de keuken is via openslaande deuren een fraai ruim overdekt terras bereikbaar. Voorzien van een luxe glazen windscherm, gashaard en sfeervolle plavuizen. Het terras heeft een prachtig uitzicht op de zij- en achtertuin en de weilanden.
Tuin:
Prachtig onder architectuur aangelegde tuin en volledig omheinde tuin met optimale privacy, groot gazon, vijverpartij, Diverse volwassen fruitbomen, volledig auto en computergestuurde beregeningsinstallatie, prachtig ruim chalet incl. toilet en pantry met een fijn terras, het geheel is bijzonder sfeervol aangelicht door de tuinverlichting.
Paardenstal:
Paardenstal met 4 ruime boxen, een poetsplaats voorzien van warm en koud leidingwater en elektra. Vanuit de paardenstal directe toegang tot de paddock, met een extra schuilstal in de weide.
Daarnaast is achter de bedrijfsruimte een fietsenstalling met extra berging voor onder andere tuingereedschap en tuinmeubilair etc. etc..
Paddock en weidegang:
Aangrenzend aan de stallen en het woonhuis is een in hout afgezette paddock en weides, omringd door een fraaie houtwal. Het geheel is omheind met hekwerk.
Loods/werkplaats:
Grote (maar liefst ca. 338 M²) vrijstaande volledig geïsoleerde loods/werkplaats met o.a. een toiletgroep + urinoir, grote bergruimte met magazijn en loopdeur tuin. De loods/werkplaats is voorzien van een vloeistofdichte bettonnen vloer. Vanuit de loods/werkplaats ook toegang tot het kantoorgedeelte met een luxe entree, tegelvloer voorzien van vloerverwarming, meterkast voorzien van krachtstroom (twee extra zware groepen), warmtepomp, waterontharder. De kantoorruimte heeft ook fraaie maatwerk kastruimte, koelkast, spoelbak en een vaatwasser. Vanuit de kantoorruimte is er zicht op de loods/werkplaats.
Belangrijk:
• Bouwjaar circa 2018, perceeloppervlakte
• Woonoppervlakte circa. 221m², oppervlakte bijgebouw 338 m², inhoud circa 1068 m³.
• Optimaal isolatiepakket met aardwarmte en gehele woning voorzien van vloerverwarming (hoofdverwarming).
• Geheel voorzien van een alarminstallatie.
• Geheel voorzien van automatische beregening
• Een riante doorgang van maar liefst 8 meter gevestigd aan de rechterzijde
• Een fraai rieten dak
• Elektrische poort met afstandsbediening
• Carport aanwezig met laadstation voor elektrische auto’s.
• Grote bronpomp aanwezig met automatische beregening in zowel de tuin als de weilanden.
• Ideaal object voor de paardenliefhebber en bedrijf aan huis met grote vrijstaande loods/werkplaats van maar liefst 338m²
• Het verkochte betreft een bedrijfsbestemming met een bedrijfswoning. Gemeente staat open voor het omzetten naar “wonen”.
• Gelegen op korte afstand van het centrum van Valkenswaard en ideale verbinding met de uitvalswegen.
Overdracht
Referentienummer
07877
Vraagprijs
€ 1.690.000,- k.k.
Status
Verkocht
Aanvaarding
In overleg
Aangeboden sinds
3 juli 2025
Laatste wijziging
7 oktober 2025
Bouw
Type object
Woonhuis | Villa | Vrijstaande woning
Soort bouw
Bestaande bouw
Bouwjaar
2018
Daktype
Samengesteld dak
Dakmateriaal
Riet, Bitumen
Isolatievormen
Volledig geisoleerd
Oppervlakte, inhoud, energie
Perceeloppervlakte
10.290 m2
Woonoppervlakte
221 m2
Inhoud
1.068 m3
Oppervlakte overige inpandige ruimten
12 m2
Oppervlakte gebouwgebonden buiten ruimten
54 m2
Oppervlakte externe bergruimte
338 m2
Energielabel
A++++
Indeling
Aantal bouwlagen
3
Aantal kamers
6 (waarvan 4 slaapkamers)
Aantal badkamers
2
Aantal toiletten
1
CV-ketel
Uitrusting
Aantal parkeerplaatsen
10
Tuin
Ja
Alarminstallatie
Ja
Airco
Ja
Badkamervoorzieningen
Badkamer 1: Toilet, Douche, Dubbele wastafel
Badkamer 2: Ligbad, Toilet, Douche, Dubbele wastafel