Valkenswaardseweg 2 • Leende

Geert van Breukelen
Verkocht
B
Koopprijs € 895.000,- K.K.
Hoogtepunten:
* Geheel stijlvol gemoderniseerd/gerenoveerd en uitgebouwd!
* Diepe achtertuin met luxe ingericht zomerhuis voorzien van prachtige bar.
* Optimaal isolatiepakket en gehele begane grond voorzien van vloerverwarming als hoofdverwarming.
* Geïsoleerde kantoor/praktijkruimte met eigen entree en toilet.
* 4 Ruime slaapkamers en 2 moderne badkamers.
* Woonoppervlakte ca. 191 m2.
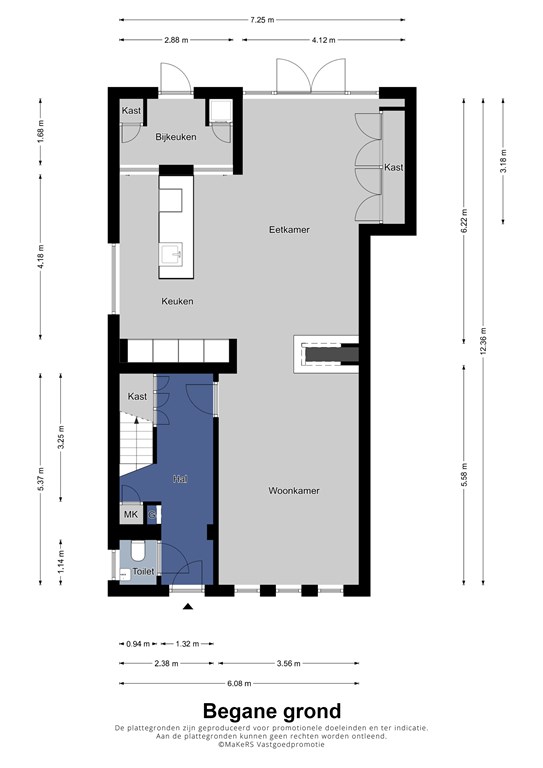
Indeling:
Begane grond:
Entree:
Ontvangsthal met prachtig eikenhouten vloer, modern betegeld toilet met fonteintje, trapopgang naar de 1e verdieping en uitgebreide en vernieuwde meterkast en een maatwerk garderobe met verlichting,
Living:
Sfeervolle living met eikenhouten vloer voorzien van vloerverwarming, design doorkijk gashaard en open verbinding met de leefkeuken.
Keuken:
Grote sfeervolle leefkeuken...
... met een combinatie van tegelvloer en prachtige eikenhouten vloer beiden voorzien van vloerverwarming. Luxe en hoogwaardige keukenopstelling met kookeiland. Compleet met inbouwapparatuur zoals: vaatwasser, grote koelkast, vriezer, combioven, combi stoomoven, inductie kookplaat, plafond afzuigkap en Quooker. Tevens is keuken voorzien van fraaie geïntrigeerde ledverlichting. Via schuifdeur toegang naar de bijkeuken. Ook is de keuken voorzien van een maatwerk inbouwkastenwand.
Bijkeuken:
Praktische bijkeuken met tegelvloer, maatwerk kastruimte met aansluiting wasapparatuur en loopdeur naar de tuin.
1e Verdieping:
Middels overloop met laminaatvloer, maatwerk kastruimte en vaste trap naar de 2e verdieping.
Slaapkamers:
1e Ruime ouderslaapkamer met fraaie laminaatvloer en maatwerk garderobekasten met verlichting.
2e Royale slaapkamer met smaakvolle laminaatvloer en rolluik.
Badkamer:
1e Geheel betegelde luxe badkamer met grote inloopdouche, ligbad, dubbel wastafelmeubel, zwevend closet, design radiator en inbouwspots.
2e Verdieping:
Middels overloop met fraaie laminaatvloer, dakkapel en maatwerk bureau. Ideale thuiswerkplek. Maatwerk inbouwkast met opstelling HR cv ketel (bouwjaar ca. 2015). Tevens een airconditioning (Toshiba).
Slaapkamers.
3e Ruime slaapkamer met dakkapel, maatwerkkastruimte en bureau.
4e Ruime slaapkamer met dakkapel, maatwerkkastruimte en bureau.
Badkamer:
2e Nieuwe geheel betegelde badkamer met dakkapel, douche, urinoir en een wastafelmeubel.
Tuin:
Fraai en volledig nieuw aangelegde tuin met optimale privacy, gazon, beregeningsinstallatie, tuinverlichting, boomhut, diverse terrassen, vrije achterom en toegang tot zomerhuis/tuinhuis.
Bijgebouw:
Zomer/tuinhuis met geïsoleerde gevlinderde betonnen vloer, glazen schuifdeuren, fraai afgewerkte maatwerk luxe bar met ingebouwde koelkasten en spoelbak. Tevens een houtkachel (ter overname). Naast het tuinhuis een deur welke toegang biedt tot een grote berging.
Praktijkruimte: 2017
Geïsoleerde kantoor/praktijkruimte met eigen entree, moderne tegelvloer, toiletruimte met zwevend closet, keukenblok met spoelbak en koelkast.
Bergruimte:
Bergruimte met moderne tegelvloer, HR cv ketel (Vaillant bouwjaar ca. 2017) en een bergzolder.
Belangrijk:
* Bouwjaar ca. 1964
* Perceeloppervlakte 533 m2.
* Woonoppervlakte ca. 191 m2, inhoud ca. 559 m3.
* Optimaal isolatiepakket met o.a. geheel voorzien van HR ++ beglazing,- vloer,- dak- en spouwmuurisolatie.
* Woning op een zeer gewilde en rustige locatie "Zeelst" op korte afstand van alle voorzieningen en tevens perfecte ligging nabij ASML, HTC en de uitvalswegen.
Genoemde maten en gegevens zijn slechts een indicatie, derhalve kunnen hieraan geen rechten ontleend worden.
Overdracht
Referentienummer
07864
Vraagprijs
€ 895.000,- k.k.
Status
Verkocht
Aanvaarding
In overleg
Aangeboden sinds
30 april 2025
Laatste wijziging
10 juni 2025
Bouw
Type object
Woonhuis | Villa | Vrijstaande woning
Soort bouw
Bestaande bouw
Bouwjaar
1964
Daktype
Samengesteld dak
Dakmateriaal
Pannen, Bitumen
Isolatievormen
Volledig geisoleerd, Spouw muur
Oppervlakte, inhoud, energie
Perceeloppervlakte
533 m2
Woonoppervlakte
191 m2
Inhoud
559 m3
Oppervlakte externe bergruimte
41 m2
Energielabel
B
Indeling
Aantal bouwlagen
4
Aantal kamers
5 (waarvan 4 slaapkamers)
Aantal badkamers
2
Aantal toiletten
1
Aantal garages
1
CV-ketel
Uitrusting
Aantal parkeerplaatsen
3
Aantal garages
1
Tuin
Ja
Airco
Ja
Badkamervoorzieningen
Badkamer 1: Ligbad, Douche, Dubbele wastafel
Badkamer 2: Toilet, Douche, Wastafel